装修是买房置业之后的必须动作,装修工程中水电工程非常重要,水电走得好能够方便后期的入住使用,提升安全用电系数。水电布线是家居装修中非常重要的一项隐蔽工程,因其被掩藏于墙体、地板之下,很多人对布线都不甚重视,导致后期搬进新房时,漏水漏电等诸多隐患就会出现,不仅又是一笔不小的经济损失,也浪费了我们的时间,只有在前期布线时多加留意,才能避免这些问题出现。
俗话说磨刀不误砍材工,打好基础,能让你以后减少麻烦,住的舒心,今天小编来讲讲资深装修电工是如何布线的?电线管预埋的好,能够减少线材的浪费,为您节省大大的银子。
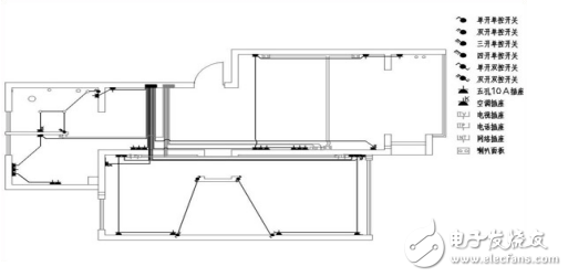
一:家庭装修电工布线图---装修电工布线技巧
在装修的时候,其实布线也有很多技巧,不然的话,家里的线路一团糟,不知道那条线路是通往哪里的,下面小编详细的介绍几个技巧,请大家一定要记住哦。

地面预埋线管,注意线槽不要凿的太深了,容易损坏楼板,如果有找平层,线管上口与找平层平就可以了,线管接头部位一定要有凹槽,易与线管面与地坪相平。

线管能够平行尽量平行施工

转弯处接头尽量错开,线管上墙处弯头要有弧度,方便今后穿线。

强弱电的间距要在30---50公分,避免强电干扰电视和电话

强弱电更不能同穿在一根管内

管内导线总截面面积要小于保护管截面面积的40%,比如20管内最多穿4根2.5m2的线
一般情况下,空调插座安装应离地2米以上,电线线路要和煤气管道相距40公分以上
家里不同区域的照明、插座、空调、热水器等电路都要分开分组布线,一旦哪部分需要断电检修时,不影响其他电器的正常使用
二:家庭装修电工布线图
这一张是天花顶面的电路布置图,主要是连接顶面的灯饰,部分开关插座,以及空调等等的线路。

这是地面的电路布置图,地面和顶面还是有很大的不同,顶面尽量走捷径,节约电线,当然都是直线,因为直线永远是最短的距离,地面则是尽量横屏竖直,并且沿墙边走,主要便于检修,减少交叉,确保安全,同时避免后期施工时,如安装地板对电线造成误伤。

三:家庭装修电工布线图----装修电工电线为什么全走顶最好?
传统的水电布线都在地面开槽,这样不仅麻烦还极有可能造成安全隐患,做生意除了要规避风险,还要能预见危险,装修房子最不喜欢的就是坐以待毙,更崇尚主动出击,家庭装修也是如此,与其开始就布下安全隐患,不如在一开始免了这样的麻烦。

从安全角度分析,电线布线时走顶,就能很好的躲开地上的水管、地暖等等,水电分离则会更加安全,不管是对日后的使用,还是日后的维修,都是非常的方便。

入住时间长了,若是遇到需要检测或者维修的时候,电线走顶会比地地要方便得多,走地要进行维修是很麻烦的,需要将地面砸开,然后再拿出电线,如果不这样做根本维修不了,而且电线走地的话,很容易就损坏防水层,到时候不但得出电线维修的钱,还是找人重新做防水层。

电线如果走地的话,若电线管道发生损坏的情况,那平日拖地后留下的水分渗入到地下时,就很有可能发生漏电或短路的危险,但如果是选择走顶的话,就完全不需要担心这个问题。
四:家庭装修电工布线图----插座开关的安装注意事项
电在我们日常生活中已经越来越不可或缺,可以说离了电在现代社会几乎寸步难行。每家每户都有数量不等的电器,而因为各种原因各个家庭用来供电的插座数量很可能不足以支持那么多的电气设备,而用电安全确是我们每个人都应高度重视的,电气设备安装注意事项是每个装修施工人员的必修课。
1、配电箱箱体严禁用电、气焊开孔或扩孔,不应开长孔,严禁背后开孔,正常情况也不在箱体侧面开孔,箱体开孔应与导管管径适配。
2、箱(盘)内配线应整齐,回路编号齐全,标识正确,箱内导线横平竖直,无绞接现象,导线连接紧密,不伤芯线,不断股。垫圈下螺丝两侧压的导线截面积相同,导线连接紧密,不伤芯线,不断股。垫圈下螺丝两侧压的导线截面积相同,同一端子上导线连接不多于2根,防松垫圈等零件齐全。

首先,室内照明配电箱安装平正,箱内配线整齐,无绞接现象。
而且需要导线连接紧密,不伤芯线,不断股 ,用电回路标识清楚
五:家庭装修电工布线图---新房装修电线施工反面案例分析
能弧不角:穿线管在布线的时候,如果碰到需要转弯的地方弧度尽量大于90度,保证活线,避免死角或者直角,便于后期维护。

能压不绕:当布线的时候出现交叉的情况,让其中一根线向下压线,不要因为交叉而导致绕线

能斜不直:这句话的意思不能看本意,其实这里的真实含义是指线路上墙的时候不要走直角

线管拐弯不能加直角弯头拐弯,因为那样易造成死弯,死线

走电管禁止采用三通管走线,那样后期无法维护。三通管,顾名思义就是有三个通口,也就是说一个进口,两个出口; 或两个进口,一个出口,是管件的一种。因为“三通管”一般是直角的或锐角的,具有很大的阻力和摩擦力,里面的强电线或者弱电线将很难拉动,所以一但需要换线的时候将无法换线。禁止使用三通管布线是一基本的常识,而使用此法一般是为了节省材料和工钱及工时。

电路走线把握“两端间最近距离走线”,禁止无故绕线,这样不但增大水电改造开支(因为是按米数算钱嘛)且易造成人为的“死线”情况发生。故意追求走直线、拐直角弯绕线是很多水电改造人员的“增加收入”常用伎俩,而且还会口口声声说什么“公司规定要求横平竖直规范施工”来搪塞业主。

强电弱电线接线盒间距正常情况下≥500mm,地面平行间距不低于200mm。强电电源线与电话线、电视线、网线、音响线等弱电线不得穿入同一根管内。因为会产生电流干扰,导致弱电信号不稳定。

保证导线连接坚固,接头不受拉力,包扎严密,导线间连接应用压接或绞接法,绞接长度不小于5.5圈。

强电导线电管与水管、燃气、弱电电管不可同槽暗敷,因为一旦出现漏水、漏气现象会有严重危险隐患。

电气改造中任何接线头处必需加装过线盒,直管中不可留有接线头;任何有线头接线盒不可用石膏或水泥材料封堵,加装盖板易于维护。家装水电改造中,强电导线线色需要分明确:相线(L火线)颜色宜用红、绿、黄三相任意色,零线(N)采用蓝色,保护线(PE地线)用黄绿双色线,控制线(开关线)采用白色。分线的目的是为了将来维护时可清晰辨认各线所代表的含义,避免事故的发生。

以上就是小编整理出来的装修电工需要注意到的一些技巧,注意事项,希望能帮助到各位业主。
电子发烧友App















评论